Mechernich Labrador Antic Granit Arbeitsplatten und Fensterbank
Aufmaß, Lieferung und Montage : Mechernich
* Granit Arbeitsplatten und Fensterbank
Aufmaß, Lieferung und Montage - Mechernich Labrador Antic Granit Arbeitsplatten und Fensterbank
Labrador Antic
Diese Küche im klassischen Landhausstil besticht durch ihre liebevolle Gestaltung und den Einsatz hochwertiger Materialien. Die blauen Kassettenfronten verleihen der Küche eine traditionelle und zugleich erfrischende Optik. Ergänzt werden sie durch schwarze Griffe, die einen harmonischen Kontrast setzen und das rustikale Flair unterstreichen.
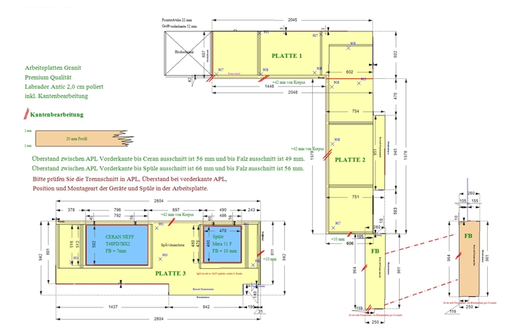
Die Arbeitsflächen bestehen aus Labrador Antic, einem edlen Naturstein, der durch seine markante dunkle Farbgebung mit blaugrauen Einschlüssen und schimmernden Reflexen besticht. Das Material verleiht der Küche eine zeitlose Eleganz und bringt eine natürliche Lebendigkeit in den Raum. Mit einer Stärke von 2,0 cm und polierten Oberflächen sorgen die Granitplatten für ein glänzendes Finish, das das Licht einfängt und die Struktur des Steins hervorhebt.
Die Küche ist in zwei Bereiche unterteilt. Entlang einer Seite des Raumes befindet sich die erste Küchenzeile in L-Form. Hier sind zwei Arbeitsplatten installiert. Die erste Platte misst 204,80 x 60,70 cm und bietet reichlich Arbeitsfläche. Die zweite Arbeitsplatte unter dem Fenster hat die Maße 197,80 x 75,10 cm und wurde mit einer Ausklinkung für die Fensternische versehen, um sich nahtlos in das Raumkonzept einzufügen. Ergänzend wurde eine Fensterbank mit den Maßen 96,10 x 26,00 cm aus dem gleichen Material gefertigt und montiert.
An der gegenüberliegenden Wand befindet sich eine weitere Küchenzeile mit einer großzügigen Arbeitsfläche von 260,40 x 94,20 cm. Auch diese Platte wurde passgenau mit einer Ausklinkung für die Fensternische angefertigt. Zwei flächenbündige Ausschnitte wurden präzise für das Ceranfeld und die Spüle integriert, was für ein modernes und zugleich funktionales Design sorgt.
Der Boden der Küche ist mit Fliesen in Blau und Braun gestaltet, die eine Granitoptik aufweisen. Diese Kombination ergänzt die Farbpalette der Küche und verleiht dem Raum eine warme und einladende Atmosphäre.
Durch die Verbindung von traditionellem Landhausstil mit edlen Naturmaterialien entsteht eine Küche, die sowohl gemütlich als auch elegant wirkt. Sie bietet viel Platz zum Kochen und Verweilen und strahlt eine zeitlose Schönheit aus.
Lieferung: Granit Arbeitsplatten und Fensterbank Labrador Antic
Lieferort: Mechernich in Nordrhein-Westfalen
Galerie - Mechernich Labrador Antic Granit Arbeitsplatten und Fensterbank
| Aktuelle - Andere Länder |
|---|
| Österreich |
| Schweiz |
| Skandinavien |
| Andere Länder |
Aufmaß, Lieferung und Montage
* mit Details und Bildern / Auf dieser Seite finden Sie unsere aktuellen Projekte. Um mehr zu erfahren klicken Sie auf die Projekte einzeln. Ist Ihre Stadt schon dabei?














