Stuttgart Classic White Silestone Arbeitsplatten und Wischleisten
Aufmaß, Lieferung und Montage : Stuttgart
* Silestone Arbeitsplatten und Wischleisten
Aufmaß, Lieferung und Montage - Stuttgart Classic White Silestone Arbeitsplatten und Wischleisten
Unser Kunde aus Schönaich bei Stuttgart bestellte bei uns Küchenarbeitsplatten aus Silestone in dem Material Classic White. Das Herkunftsland des Materials ist Spanien. Unser Kunde wünschte Aufmaß und Montage der Küchenarbeitsplatten, die von unseren eigenen Technikern durchgeführt wurden. Neben der Montage der Küchenarbeitsplatten wurde ebenfalls eine Montage des Wandabschlussprofils angefordert.
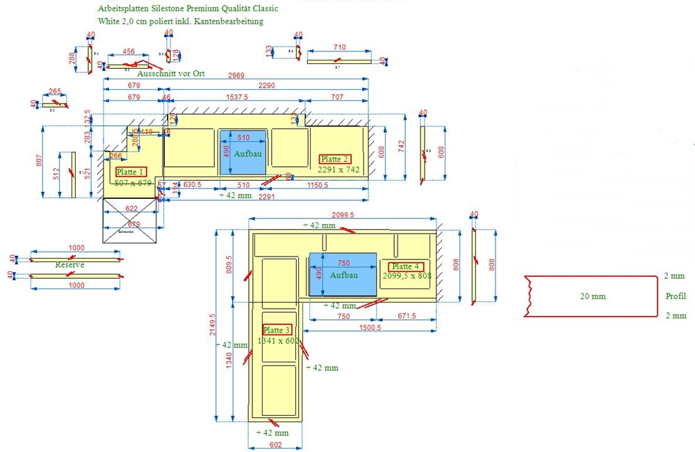
Die Maße der Küchenarbeitsplatte betragen 80,7 cm x 67,9 cm; 229,1 cm x 74,2 cm; 134,1 cm x 60,2 cm; 210,0 cm x 80,8 cm. Die Arbeitsplatten haben eine Stärke von 2 cm und eine polierte Oberfläche. Zusätzlich bestellte der Kunde, als Wandabschluss und zum Schutz, ca 2,5 lfm Wischleisten. Die Arbeitsplatte enthält zwei gesägte Ausschnitte für das Ceran Kochfeld und für das Spülbecken. Außerdem enthält die Arbeitsplatte 4 nicht sichtbare Ausklinkungen bis zu 30 cm. Ein Teil der Küchenarbeitsplatten ragt in den Raum rein und somit ist aufgrund der Sichtbarkeit eine zusätzliche Politur der zweiten Längskante erforderlich.
Nach jedem Aufmaß wird dem Kunden eine CAD Zeichnung zugesandt. In der CAD Zeichnung kann der Kunde die Maße seiner Küchenarbeitsplatte nachvollziehen und die Lage der Ausschnitte einsehen. Wenn Ihm die Lage der Ausschnitte zuspricht erteilt er eine Freigabe und die Produktion des Auftrages kann beginnen.
Silestone ist ein Produkt, welches zu 94 % aus Naturquarz besteht. Der Naturquarz verleiht dem Material eine außergewöhnliche Härte und Resistenz. Somit zeichnet sich Silestone sehr gut als Küchenarbeitsplatte aus.
Lieferung: Silestone Arbeitsplatten und Wischleisten Classic White
Lieferort: Schönaich bei Stuttgart in Baden - Württemberg
Galerie - Stuttgart Classic White Silestone Arbeitsplatten und Wischleisten
| Aktuelle - Andere Länder |
|---|
| Österreich |
| Schweiz |
| Skandinavien |
| Andere Länder |
Aufmaß, Lieferung und Montage
* mit Details und Bildern / Auf dieser Seite finden Sie unsere aktuellen Projekte. Um mehr zu erfahren klicken Sie auf die Projekte einzeln. Ist Ihre Stadt schon dabei?











