Starnberg VK03 Grigio Dekton Arbeitsplatten und Rückwände
Aufmaß, Lieferung und Montage : Starnberg
* Dekton Arbeitsplatten und Rückwände
Aufmaß, Lieferung und Montage - Starnberg VK03 Grigio Dekton Arbeitsplatten und Rückwände
VK03 Grigio
Diese moderne Küche in Starnberg, Bayern, besticht durch eine hochwertige Ausführung mit klaren Linien und einer durchdachten Raumgestaltung. Verwendet wurde das Material Dekton VK03 Grigio in UltraMatt Oberfläche – ein eleganter, zurückhaltender Farbton mit einer natürlichen Steinoptik, inspiriert von Grigio Alpi, einem feinkörnigen venezianischen Kalkstein. Die matte Oberfläche vermittelt eine samtige Haptik und verstärkt den zeitgemäßen, minimalistischen Charakter des Küchenraums.
Die Küchenplanung folgt einer L-Form entlang der Wand und wird durch eine großzügige Insel ergänzt, die sich zum offenen Wohnraum hin orientiert. Die unteren Küchenmöbel sind in einer warmen Holzoptik gestaltet, während die Oberschränke in einem dunklen Grün gehalten sind. Diese Kombination verleiht der Küche eine stilvolle, zeitlose Ästhetik. Große Fensterflächen lassen viel Tageslicht in den Raum und schaffen eine fließende Verbindung zwischen Innen- und Außenbereich.
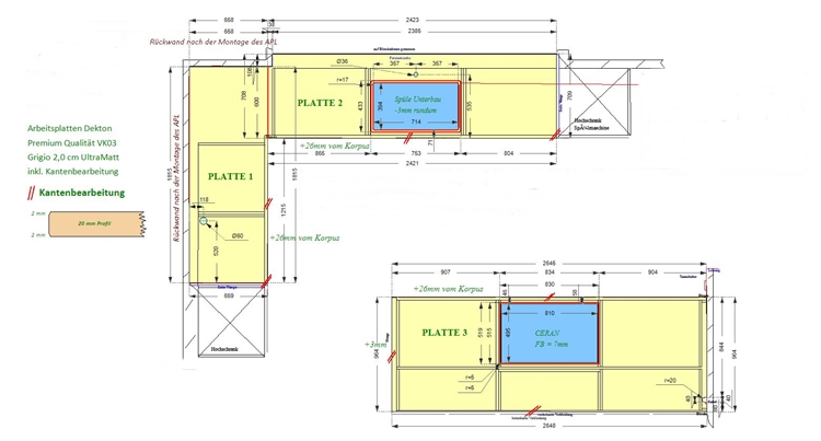
Für die Arbeitsflächen wurden drei Dektonplatten in 2,0 cm Stärke eingesetzt. Die erste, wandseitige Platte misst 181,50 x 65,80 cm und enthält eine präzise Bohrung. Die zweite Platte verläuft unterhalb des Fensters und ist 242,30 x 70,90 cm groß. Sie enthält eine Ausklinkung, eine Unterbauspüle sowie die dazugehörige Armaturbohrung. Die dritte Platte bildet die großzügige Arbeitsfläche auf der Kücheninsel. Sie misst 264,80 x 96,40 cm und ist mit einem flächenbündig eingebauten Ceranfeld ausgestattet – ideal für gemeinsames Kochen mit Blick in den Wohnbereich.
Nach der Montage wurden auch Rückwände aus Dekton VK03 Grigio in 1,2 cm Stärke angebracht, passend zum Gesamtkonzept. Die Hauptfläche misst 181,70 x 70,00 cm und enthält zwei Bohrungen für Steckdosen. Zwei weitere Rückwände ergänzen die Wandgestaltung mit den Maßen 69,10 x 70,00 cm ebenfalls mit Steckdosenbohrungen versehen und 10,40 x 70,00 cm.
So entstand ein harmonisches, modernes Küchendesign mit hochwertigen Materialien, das Funktionalität und Ästhetik auf hohem Niveau vereint.
Lieferung: Dekton Arbeitsplatten und Rückwände VK03 Grigio
Lieferort: Starnberg in Bayern
Galerie - Starnberg VK03 Grigio Dekton Arbeitsplatten und Rückwände
| Aktuelle - Andere Länder |
|---|
| Österreich |
| Schweiz |
| Skandinavien |
| Andere Länder |
Aufmaß, Lieferung und Montage
* mit Details und Bildern / Auf dieser Seite finden Sie unsere aktuellen Projekte. Um mehr zu erfahren klicken Sie auf die Projekte einzeln. Ist Ihre Stadt schon dabei?

















