Köln Belvedere Granit Arbeitsplatten
Aufmaß, Lieferung, Montage : Köln
* Granit Arbeitsplatten
Aufmaß, Lieferung, Montage - Köln Belvedere Granit Arbeitsplatten
Die Farbauswahl, die Robustheit und die Härte sind erst der Anfang wenn die Rede von Granit Arbeitsplatten ist. Das Besondere an diesen Arbeitsplatten, das Material ist bombenfest und nahezu "unkaputtbar". Außerdem sind sie pflegeleicht und so ziemlich alles, was auch in die Küche gehört, lässt sich mit einem feuchten Tuch abwischen. Alles andere bekommt man mit milden Reinigungsmitteln in den Griff.
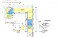
Neben diesen tollen Eigenschaften, bewegte unsere Kunden aus Köln die Farben des Belvedere Granits zum Kauf dieser Arbeitsplatten. In die 2 cm starken Platten mit der satinierten Oberfläche wurden zwei Ausschnitte eingearbeitet: 1x flächenbündig für die Kochstelle und 1x gesägt nach Schablone für die Spüle. Es wurde auch eine Schürze in 4 cm Stärke bestellt und an der rechten Außenseite angebracht und Sockelleisten aus dem gleichen Material in 1 cm Stärke.
Lieferung: Granit Arbeitsplatten Belvedere
Lieferort: Köln in Nordrhein-Westfalen
Galerie - Köln Belvedere Granit Arbeitsplatten
| Aktuelle - Andere Länder |
|---|
| Österreich |
| Schweiz |
| Skandinavien |
| Andere Länder |
Aufmaß, Lieferung und Montage
* mit Details und Bildern / Auf dieser Seite finden Sie unsere aktuellen Projekte. Um mehr zu erfahren klicken Sie auf die Projekte einzeln. Ist Ihre Stadt schon dabei?




