Kitzingen Negro Tebas Silestone Arbeitsplatten
Lieferung : Kitzingen
* Silestone Arbeitsplatten
Lieferung - Kitzingen Negro Tebas Silestone Arbeitsplatten
Negro Tebas
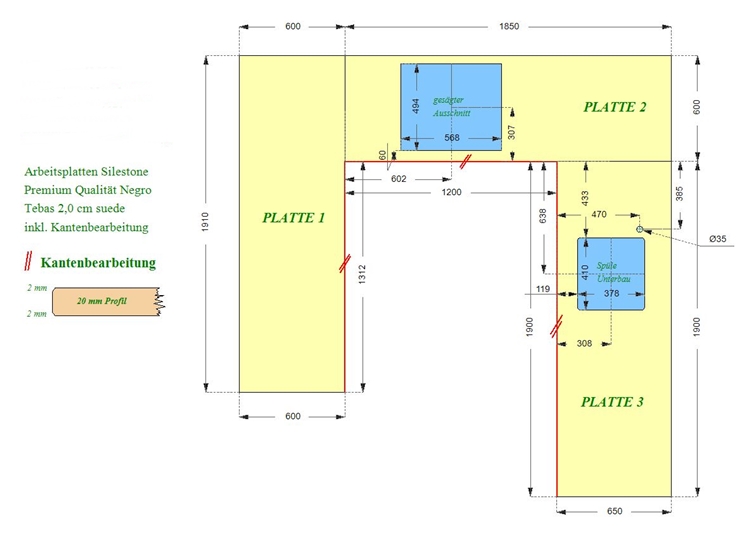
In Kitzingen, Bayern, wurde ein maßgefertigtes Arbeitsplattenprojekt mit hochwertigen Oberflächen aus Silestone umgesetzt. Verwendet wurde das Modell „Negro Tebas“ in der Suede-Ausführung – eine matte, samtige Oberfläche, die nicht nur durch ihre elegante Haptik, sondern auch durch ihre pflegeleichte und widerstandsfähige Beschaffenheit überzeugt. Die Platten sind 2,0 cm stark und mit einer umlaufenden Kantenbearbeitung in 2 mm Fase versehen, wodurch sie eine schlichte, aber präzise definierte Kontur erhalten.
Die Küche ist in einer U-Form angelegt und besteht aus drei aufeinander abgestimmten Plattenelementen. Die erste Silestone Arbeitsplatte misst 191,00 cm in der Länge und 60,00 cm in der Tiefe. Daran schließt sich eine zweite Platte mit den Maßen 185,00 x 60,00 cm an, in die ein gesägter Ausschnitt integriert wurde – vermutlich für den Einbau eines Kochfeldes. Gemeinsam mit einem passgenauen Eckstoß zur dritten Platte entsteht eine funktionale L-Anordnung.
Die dritte Arbeitsplatte misst 190,00 cm in der Länge bei einer Tiefe von 65,00 cm und enthält einen präzise gearbeiteten Ausschnitt für eine Unterbauspüle. Zusätzlich wurde eine Bohrung mit einem Durchmesser von 35 mm vorgesehen, vermutlich zur Aufnahme einer Küchenarmatur.
Lieferung: Silestone Arbeitsplatten Negro Tebas
Lieferort: Kitzingen in Bayern
Galerie - Kitzingen Negro Tebas Silestone Arbeitsplatten
| Aktuelle - Andere Länder |
|---|
| Österreich |
| Schweiz |
| Skandinavien |
| Andere Länder |
Aufmaß, Lieferung und Montage
* mit Details und Bildern / Auf dieser Seite finden Sie unsere aktuellen Projekte. Um mehr zu erfahren klicken Sie auf die Projekte einzeln. Ist Ihre Stadt schon dabei?









