Göppingen Laurent Dekton Arbeitsplatten
Lieferung : Göppingen
* Dekton Arbeitsplatten
Lieferung - Göppingen Laurent Dekton Arbeitsplatten
Laurent
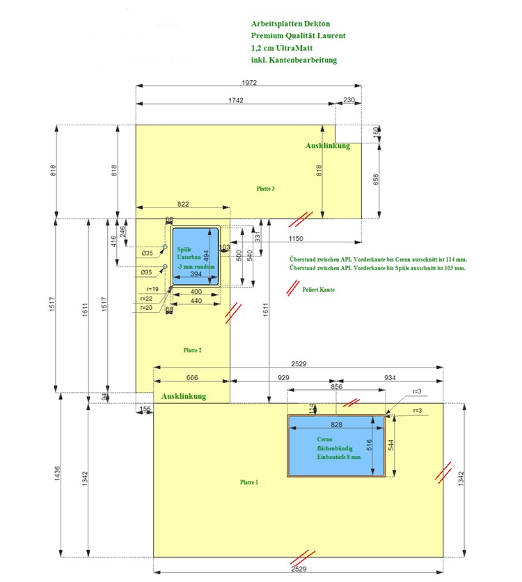
Göppingen ist eine Stadt in Baden-Württemberg, etwa 40 Kilometer östlich von Stuttgart und dort wurden die drei Dekton Arbeitsplatten geliefert. Diese wurden in den folgenden Maßen gefertigt:
1. 252,90 x 134,20 cm
2. 161,10 x 82,20 cm
3. 197,20 x 81,80 cm
Diese wurden aus dem Material Laurent in 1,2 cm Stärke und UltraMatt Oberflächen produziert. In die erste Arbeitsplatte wurde ein flächenbündiger Ausschnitt für das Ceranfeld eingearbeitet. Die zweite Dektonplatte hat einen Unterbauausschnitt, zwei Armaturbohrungen und eine Ausklinkung. Die dritte Dekton Arbeitsplatte hat eine Ausklinkung.
Lieferung: Dekton Arbeitsplatten Laurent
Lieferort: Göppingen in Baden-Württemberg
Galerie - Göppingen Laurent Dekton Arbeitsplatten
| Aktuelle - Andere Länder |
|---|
| Österreich |
| Schweiz |
| Skandinavien |
| Andere Länder |
Aufmaß, Lieferung und Montage
* mit Details und Bildern / Auf dieser Seite finden Sie unsere aktuellen Projekte. Um mehr zu erfahren klicken Sie auf die Projekte einzeln. Ist Ihre Stadt schon dabei?





