Bergheim Grey Earth SapienStone Arbeitsplatten
Aufmaß, Lieferung und Montage : Bergheim
* SapienStone Arbeitsplatten
Aufmaß, Lieferung und Montage - Bergheim Grey Earth SapienStone Arbeitsplatten
Grey Earth
Der monochrome Stil mit neutralen Farben lebt besonders von unterschiedlichen Oberflächen, Texturen und Materialien. Das Spiel mit Licht und Schatten findet hier im Detail statt: weiße Hochglanz Fronten, moderne E-Geräte, dazu Arbeitsplatten mit Natural bzw. matten Oberflächen in Grau. Auch wenn die Farben alle sehr ähnlich sind, zeigt der Look durch die unterschiedlichen Oberflächen interessante Farbspiele.
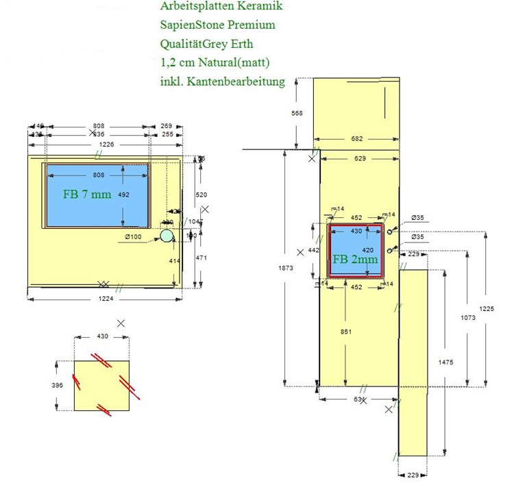
Diese Küchenarbeitsplatten in hellem Grau wirken leicht, modern und alles andere als kalt. Sie wurden aus dem Material Grey Earth von SapienStone hergestellt. Die Keramikplatten habe eine Stärke von 1,2 cm und wurden in den folgenden Maßen gefertigt:
1. 122,60 x 104,70 cm, mit flächenbündigen Ausschnitt und Ø 100 mm Bohrung
2. 187,30 x 63,10 cm, mit flächenbündigen Ausschnitt und zwei Ø 35 mm Bohrungen
3. 68,20 x 56,80 cm
4. 43,00 x 39,50 cm
Dazu wurde eine Fensterbank in den Maßen 147,50 x 22,90 cm produziert und montiert.
Lieferung: Keramik SapienStone Arbeitsplatten und Fensterbank Grey Earth
Lieferort: Bergheim in Nordrhein-Westfalen
Galerie - Bergheim Grey Earth SapienStone Arbeitsplatten
| Aktuelle - Andere Länder |
|---|
| Österreich |
| Schweiz |
| Skandinavien |
| Andere Länder |
Aufmaß, Lieferung und Montage
* mit Details und Bildern / Auf dieser Seite finden Sie unsere aktuellen Projekte. Um mehr zu erfahren klicken Sie auf die Projekte einzeln. Ist Ihre Stadt schon dabei?








