Alfter Juparana India Granit Arbeitsplatten und Rückwände
Aufmaß, Lieferung und Montage : Alfter
* Granit Arbeitsplatten, Rückwände und Wischleisten
Aufmaß, Lieferung und Montage - Alfter Juparana India Granit Arbeitsplatten und Rückwände
Juparana India
Eine geschickte Kombination aus Landhausstil und Naturstein wählten unsere Kunden aus Alfter, das mit den typischen Charakteristika des Stiles gespickt ist und sich vermutlich deshalb auf den ersten Blick sofort wohlig-vertraut anfühlt. Die Küche zeigt sich mit fein geprägten Kassettenfronten und mit Sprossen versehenen Glastüren der Vitrinen. Die rustikale Ausstrahlung wird mit den Granit Arbeitsplatten und Rückwänden verstärkt.
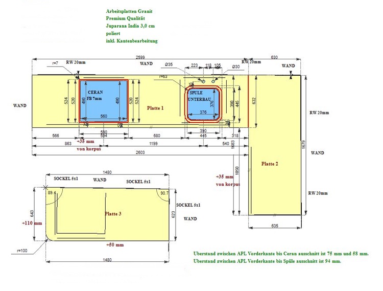
Diese wurden aus dem Granit Juparana India in 3,0 cm Stärke mit polierten Oberflächen und folgenden Maßen gefertigt:
1. 259,90 x 63,20 cm, mit flächenbündigen Ausschnitt, Unterbauausschnitt und zwei Armaturbohrungen
2. 167,70 x 63,50 cm
3. 148,00 x 64,30 cm, mit Rundung an der Ecke
Auf den Wänden der L-förmigen Küchenzeile wurden drei Granit Rückwände mit eine Höhe von 53,00 cm angebracht. Insgesamt wurden sieben Steckdosenbohrungen eingearbeitet. Auf der geraden Küchenzeile gegenüber wurden zwei Wischleisten in 3,0 cm Höhe montiert.
Lieferung: Granit Arbeitsplatten, Rückwände und Wischleisten Juparana India
Lieferort: Alfter in Nordrhein-Westfalen
Galerie - Alfter Juparana India Granit Arbeitsplatten und Rückwände
| Aktuelle - Andere Länder |
|---|
| Österreich |
| Schweiz |
| Skandinavien |
| Andere Länder |
Aufmaß, Lieferung und Montage
* mit Details und Bildern / Auf dieser Seite finden Sie unsere aktuellen Projekte. Um mehr zu erfahren klicken Sie auf die Projekte einzeln. Ist Ihre Stadt schon dabei?












