Regensburg White Storm Silestone Arbeitsplatten
Aufmaß, Lieferung und Montage : Regensburg
* Silestone Arbeitsplatten
Aufmaß, Lieferung und Montage - Regensburg White Storm Silestone Arbeitsplatten
White Storm
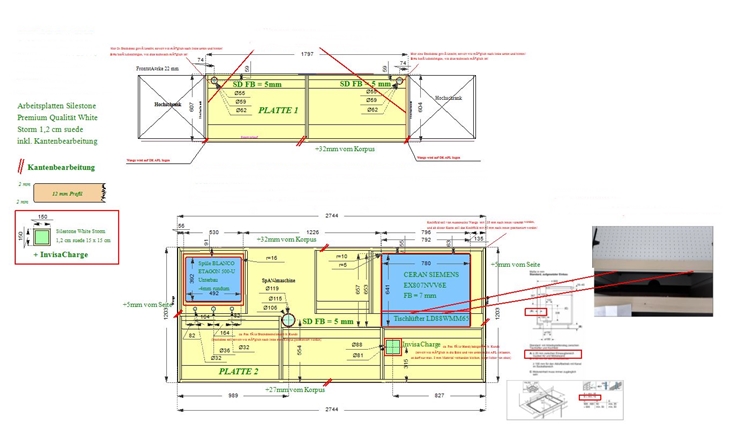
Diese Küche präsentiert sich in einem klar strukturierten, modernen Raum mit reduzierter Formsprache und einem Fokus auf hochwertige Materialien sowie funktionale Gestaltung. Die Fronten sind in einem matten, hellen Farbton gehalten, der perfekt mit der Arbeitsplatte in White Storm von Silestone harmoniert. Diese ist in der samtig-matten Suede-Oberfläche ausgeführt und nur 1,2 cm stark, was dem gesamten Küchenbild eine elegante Leichtigkeit verleiht.
Die Raumaufteilung besteht aus zwei zentralen Bereichen: einer geradlinigen Küchenzeile und einer großzügigen Kochinsel. Die Küchenzeile misst 179,70 cm in der Breite und ist 60,40 cm tief. Sie ist präzise in die Wandnische eingepasst und weist in den beiden Ecken jeweils eine runde Steckdosenbohrung auf – eine unauffällige, aber praktische Lösung, um elektrische Geräte anschließen zu können, ohne die klare Linie der Oberfläche zu stören. Oberhalb und unterhalb befinden sich grifflos ausgeführte Schränke und Schubladen, die für Stauraum sorgen und das minimalistische Design unterstreichen.
Die Kochinsel ist mit 274,40 x 120,30 cm besonders großzügig dimensioniert und bildet das funktionale Zentrum der Küche. In ihr ist ein schwarzer Unterbauspülstein bündig integriert, flankiert von drei exakt gebohrten Armaturöffnungen. Die flächenbündige Integration eines Siemens-Ceranfelds unterstreicht den modernen und technischen Anspruch der Küche. Zusätzlich verfügt die Insel über ein integriertes InvisaCharge-System, das kabelloses Laden von Mobilgeräten direkt auf der Arbeitsfläche ermöglicht. Eine runde, flächenbündige Steckdose in der Nähe der Kochzone ergänzt das funktionale Konzept.
Das Gesamtbild der Küche wirkt aufgeräumt, hochwertig und durchdacht bis ins Detail. Die Kombination aus der feinen Keramikoptik der Arbeitsplatten, der matten Haptik der Fronten und der nahtlosen Integration der Geräte ergibt ein modernes Küchenambiente mit einer ruhigen, aber klaren Ausstrahlung.
Lieferung: Silestone Arbeitsplatten White Storm
Lieferort: Steinberg am See bei Regensburg in Bayern
Galerie - Regensburg White Storm Silestone Arbeitsplatten
| Aktuelle - Andere Länder |
|---|
| Österreich |
| Schweiz |
| Skandinavien |
| Andere Länder |
Aufmaß, Lieferung und Montage
* mit Details und Bildern / Auf dieser Seite finden Sie unsere aktuellen Projekte. Um mehr zu erfahren klicken Sie auf die Projekte einzeln. Ist Ihre Stadt schon dabei?









