Naumburg (Saale) Anden Phyllit Granit Kaminabdeckung
Lieferung : Naumburg (Saale)
* Granit Kaminabdeckung
Lieferung - Naumburg (Saale) Anden Phyllit Granit Kaminabdeckung
Stößen bei Naumburg (Saale) war unser nächster Lieferort. Dorthin lieferten unsere Techniker eine Kaminabdeckung, Wangen und eine Schürze aus dem Granit Material Anden Phyllit mit satinierter Oberfläche und 2,0 cm Stärke. Die Granitprodukte wurden in folgenden Maßen produziert:
1. Kaminabdeckung in 105,0 x 33,0 cm, mit einer Ausklinkung und sichtbaren Kanten auf Gehrung geschnitten
2. Wange in 38,0 x 33,0 cm, mit rechter langen Kante auf Gehrung geschnitten,
3. Wange in 38,0 x 33,0 cm, mit linker langen Kante auf Gehrung geschnitten,
4. Schürze in 38,0 x 4,5 cm, mit beiden langen Kanten auf Gehrung geschnitten.
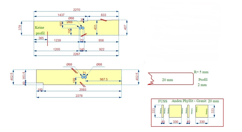
Nachträglich wurden zwei Marmor Wandplatten aus dem Material Carrara Leonardo in den Maßen 227,00 x 40,70 cm und 227,80 x 40,25 cm gefertigt und geliefert. Zwei Steckdosenbohrungen wurden in beide Platten eingearbeitet. Die Wandplatten haben eine Stärke von 2,0 cm und polierte Obeflächen.
Lieferung: Granit Kaminabdeckung, Wangen und Schürze Anden Phyllit, Marmor Wandplatten Carrara Leonardo
Lieferort: Stößen bei Naumburg (Saale) in Sachsen Anhalt
Galerie - Naumburg (Saale) Anden Phyllit Granit Kaminabdeckung
| Aktuelle - Andere Länder |
|---|
| Österreich |
| Schweiz |
| Skandinavien |
| Andere Länder |
Aufmaß, Lieferung und Montage
* mit Details und Bildern / Auf dieser Seite finden Sie unsere aktuellen Projekte. Um mehr zu erfahren klicken Sie auf die Projekte einzeln. Ist Ihre Stadt schon dabei?







