Köln Mustang Schiefer Schieferplatten
Lieferung : Köln
* Schieferplatten
Lieferung - Köln Mustang Schiefer Schieferplatten
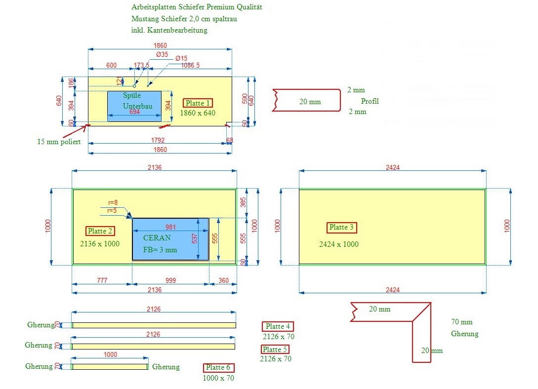
In Köln wurden drei Schieferplatten aus dem Material Mustang Schiefer geliefert. Die haben eine Stärke von 2,0 cm, aber wurden mit Hilfe von 7,0 cm Schürzen auf Gehrung gesägt und verklebt.
Die Schieferplatten haben folgende Maße:
1. 186,00 x 64,00 cm, mit Unterbauausschnitt und Lochbohrungen
2. 213,60 x 100,00 cm, mit flächenbündigen Ausschnitt
3. 242,40 x 100,00 cm
Die Oberflächen der Schieferplatten sind spaltrau.
Lieferung: Schieferplatten Mustang Schiefer
Lieferort: Köln in Nordrhein-Westfalen
Galerie - Köln Mustang Schiefer Schieferplatten
| Aktuelle - Andere Länder |
|---|
| Österreich |
| Schweiz |
| Skandinavien |
| Andere Länder |
Aufmaß, Lieferung und Montage
* mit Details und Bildern / Auf dieser Seite finden Sie unsere aktuellen Projekte. Um mehr zu erfahren klicken Sie auf die Projekte einzeln. Ist Ihre Stadt schon dabei?






