Köln Adak White Quarz Arbeitsplatten und Wischleisten
Aufmaß, Lieferung und Montage : Köln
* Quarz Arbeitsplatten und Wischleisten
Aufmaß, Lieferung und Montage - Köln Adak White Quarz Arbeitsplatten und Wischleisten
Diese Küche in Köln bietet eine perfekte Aufteilung, sowie Stauraum auf überschaubarem Platz. Die Zusammenstellung der Fronten in Weiß und der Arbeitsplatte aus Quarz lässt die Küche einladend und freundlich wirken. Modern, aber wohnlich passen diese Zeilenküchen ideal in diese geschlossene Küche.
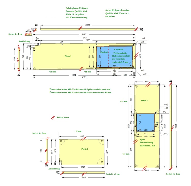
Wir fertigten drei Arbeitsplatten aus dem Quarz Adak White in 2,0 cm Stärke und den folgenden Maßen:
1. 249,40 x 62,50 cm
2. 202,10 x 60,40 cm
3. 104,00 x 62,70 cm
Die erste Arbeitsplatte wurde mit einem flächenbündigen Ausschnitt für das Gas-Ceran-Kochfeld gefertigt, sowie Ausklinkungen. Die zweite Arbeitsplatte hat einen flächenbündigen Ausschnitt für die Spüle, sowie eine Armaturbohrung.
Dazu wurden sieben Quarz Wischleisten aus dem selben Material in 4,0 x 2,0 cm hergestellt und montiert.
Lieferung: Quarz Arbeitsplatten und Wischleisten Adak White
Lieferort: Köln in Nordrhein-Westfalen
Galerie - Köln Adak White Quarz Arbeitsplatten und Wischleisten
| Aktuelle - Andere Länder |
|---|
| Österreich |
| Schweiz |
| Skandinavien |
| Andere Länder |
Aufmaß, Lieferung und Montage
* mit Details und Bildern / Auf dieser Seite finden Sie unsere aktuellen Projekte. Um mehr zu erfahren klicken Sie auf die Projekte einzeln. Ist Ihre Stadt schon dabei?








