Karlsruhe Cielo White Granit Arbeitsplatten
Aufmaß, Lieferung und Montage : Karlsruhe
* Granit Arbeitsplatten
Aufmaß, Lieferung und Montage - Karlsruhe Cielo White Granit Arbeitsplatten
Arbeitsplatten aus Naturstein Granit sind sagenhaft. Die klassische Eleganz der Arbeitsplatte aus Naturstein wird Ihre Küche strahlend auszeichnen. Wegen der hervorragender Haltbarkeit der Granit Arbeitsplatte werden Sie nie mehr eine andere brauchen.
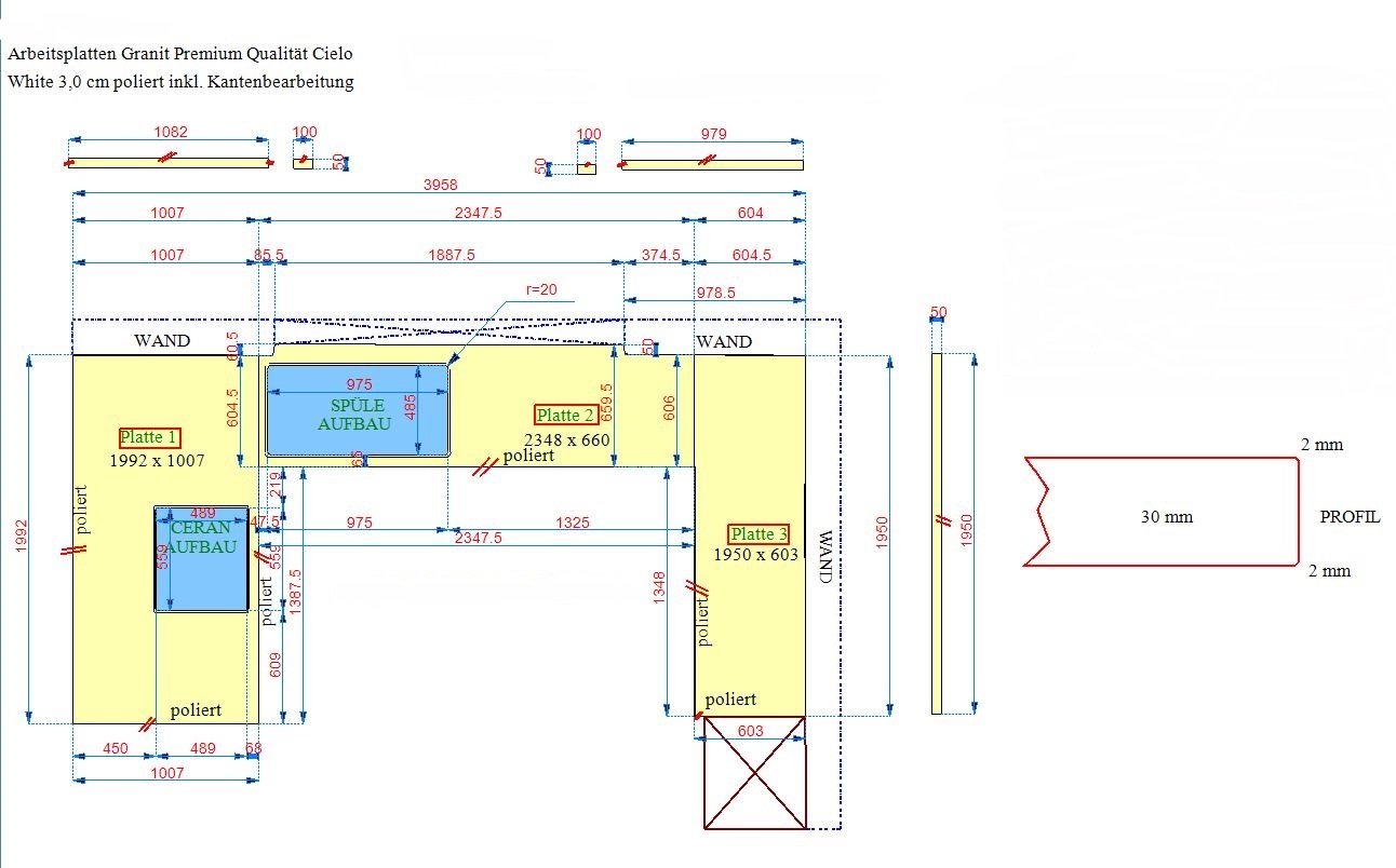
Unser Kunde aus Durmersheim bei Karlsruhe hat sich 3 Naturstein Granit Arbeitsplatten gewünscht. Vor der Verarbeitung der Granit Arbeitsplatten hat unser Montage Team das Aufmaß mit einem ProLiner genommen. Für die Arbeitsplatten, hat sich der Kunde das Material Granit Cielo White mit polierter Oberfläche und 3,0 cm Stärke ausgesucht. Jede Arbeitsplatte hat verschiedene Maße, eine der drei Arbeitsplatten hat die Maße von 195,0 x 60,40 cm, die zweite Arbeitsplatte ist 199,0 x 100,0 cm groß und hat einen Aufbauausschnitt für das Kochfeld, und in der dritten Arbeitsplatte mit den Maßen 234,70 x 66,0 cm wurde auch ein Aufbauausschnitt für die Spüle eingearbeitet. Nach der Fertigung der Arbeitsplatten hat unser Montage Team die Arbeitsplatten zu dem Kunden geliefert und montiert.
Lieferung: Granit Arbeitsplatten Cielo White
Lieferort: Durmersheim bei Karlsruhe in Baden-Württemberg
Galerie - Karlsruhe Cielo White Granit Arbeitsplatten
| Aktuelle - Andere Länder |
|---|
| Österreich |
| Schweiz |
| Skandinavien |
| Andere Länder |
Aufmaß, Lieferung und Montage
* mit Details und Bildern / Auf dieser Seite finden Sie unsere aktuellen Projekte. Um mehr zu erfahren klicken Sie auf die Projekte einzeln. Ist Ihre Stadt schon dabei?







