Ismaning Fiord Dekton Arbeitsplatten und Wischleisten
Aufmaß, Lieferung und Montage : Ismaning
* Dekton Arbeitsplatten und Wischleisten
Aufmaß, Lieferung und Montage - Ismaning Fiord Dekton Arbeitsplatten und Wischleisten
Modernes Wohnambiente und technische Glanzleistungen verbinden sich in dieser smarten Küche in Ismaning. Die Hochglanz-Oberflächen geben dem Küchenraum einen edlen Schimmer, der mit den hellen Arbeitsflächen korrespondiert.
Die einzelnen Bereiche der Küche sind klar untergliedert und geben dem großen Raum eine gelungene Struktur: Koch- und Spülbereich, sowie die Arbeitsflächen sind stilvoll aneinander gefügt und werden von großzügigen Stauraumflächen in Unterschränken und Schrankwand ergänzt. Auch moderne Technik hat einen festen Platz in dieser Küche, die mit Sitzgelegenheit ergänzt zum Lebensmittelpunkt im Alltagsgeschehen der Familie wird.
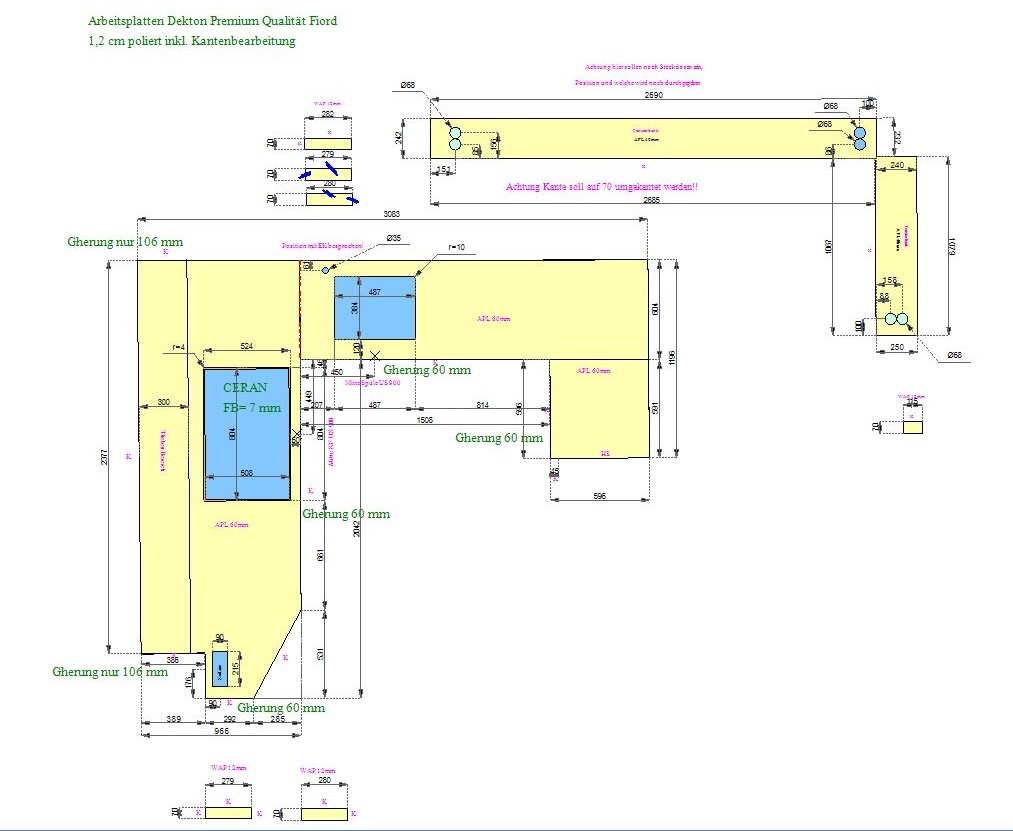
Für diese U-Küche wurden sechs Arbeitsplatten aus dem Material Fiord von Dekton hergestellt. Die Platten haben eigentlich eine Stärke von 1,2 cm wurden aber Dank Gehrungsschnitt mit 6,0 cm Schürzen verklebt und wirken daher optisch wertiger. Die Dekton Arbeitsplatten wurden in den folgenden Maßen hergestellt:
1. 237,90 x 31,00 cm
2. 264,70 x 67,10 cm, mit flächenbündigen Ausschnitt für das Ceranfeld und ein Aufbauausschnitt
3. 150,90 x 60,10 cm, mit Unterbauausschnitt für die Spüle und eine Armaturbohrung
4. 119,80 x 59,70 cm
5. 269,70 x 24,50 cm, mit vier Steckdosenbohrungen
6. 108,00 x 25,20 cm, mit zwei Steckdosenbohrungen
Dazu wurden sechs Dekton Wischleisten aus dem selben Material an die Wand verklebt. Diese haben eine Höhe von 7,0 cm.
Lieferung: Dekton Arbeitsplatten und Wischleisten Fiord
Lieferort: Ismaning in Bayern
Galerie - Ismaning Fiord Dekton Arbeitsplatten und Wischleisten
| Aktuelle - Andere Länder |
|---|
| Österreich |
| Schweiz |
| Skandinavien |
| Andere Länder |
Aufmaß, Lieferung und Montage
* mit Details und Bildern / Auf dieser Seite finden Sie unsere aktuellen Projekte. Um mehr zu erfahren klicken Sie auf die Projekte einzeln. Ist Ihre Stadt schon dabei?











