Hamburg Mustang Schiefer Arbeitsplatten
Lieferung und Montage : Hamburg
* Schiefer Arbeitsplatten
Lieferung und Montage - Hamburg Mustang Schiefer Arbeitsplatten
Mustang Schiefer
Unsere Kunden aus Hamburg wünschten sich viel Holz, kombiniert mit Schiefer. Die Küchenelemente aus Holz schließen mit einer dunklen Schieferplatte mit spaltrauer Oberfläche ab. Auch die Kombination verschiedener Elektrogeräte, die kompakt eingebaut wurden, werden von der Schiefer Arbeitsplatte gekrönt.
In den Schränken und Schubfächern unter der Arbeitsplatte hat das Kochgeschirr seinen Platz - zumindest im Küchenbereich. Denn der Küchenblock und weitere anreihende Schränke haben auch zum Essbereich hin Schubladen und wurden ebenso mit maßgefertigten Schiefer Arbeitsplatten ausgestattet.
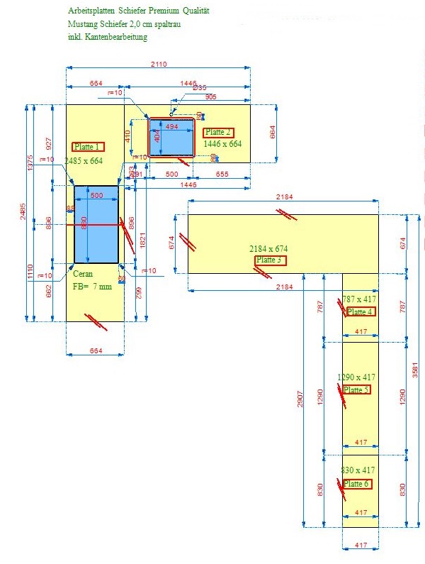
Für diese moderne Holzküche haben wir insgesamt sechs Schiefer Arbeitsplatten aus dem Material Mustang Schiefer in 2,0 cm Stärke in den folgenden Maßen gefertigt:
1. 248,50 x 66,40 cm
2. 144,60 x 66,40 cm
3. 218,40 x 67,40 cm
4. 78,70 x 41,70 cm
5. 129,00 x 41,70 cm
6. 83,00 x 41,70 cm
In die erste Arbeitsplatte wurde das Ceranfeld flächenbündig eingesetzt. In die zweite Schiefer Arbeitsplatte wurde ein Unterbauausschnitt und eine Bohrung eingearbeitet.
Lieferung: Schiefer Arbeitsplatte Mustang Schiefer
Lieferort: Hamburg
Galerie - Hamburg Mustang Schiefer Arbeitsplatten
| Aktuelle - Andere Länder |
|---|
| Österreich |
| Schweiz |
| Skandinavien |
| Andere Länder |
Aufmaß, Lieferung und Montage
* mit Details und Bildern / Auf dieser Seite finden Sie unsere aktuellen Projekte. Um mehr zu erfahren klicken Sie auf die Projekte einzeln. Ist Ihre Stadt schon dabei?







