Frankfurt (Oder) Steel Grey Granit Arbeitsplatten
Lieferung : Frankfurt (Oder)
* Granit Arbeitsplatten
Lieferung - Frankfurt (Oder) Steel Grey Granit Arbeitsplatten
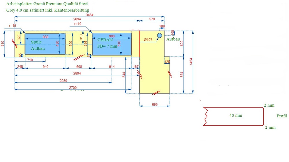
Zwei graue Arbeitsplatten aus Naturstein wurden in Müllrose bei Frankfurt (Oder). Für die Produktion verwendeten wir das Granit Material Steel Grey mit satinierter Oberfläche und 4,0 cm Plattenstärke. Die Arbeitsplatten sind in diesen Maßen hergestellt:
1. Arbeitsplatte in 289,4 x 61,0 cm, mit einem Aufbauausschnitt und einem flächenbündigen Ausschnitt,
2. Arbeitsplatte in 145,4 x 69,5 cm, mit einer Ausklinkung und einer Steckdosenbohrung.
Lieferung: Granit Arbeitsplatten Steel Grey
Lieferort: Müllrose bei Frankfurt (Oder) in Brandenburg
Galerie - Frankfurt (Oder) Steel Grey Granit Arbeitsplatten
| Aktuelle - Andere Länder |
|---|
| Österreich |
| Schweiz |
| Skandinavien |
| Andere Länder |
Aufmaß, Lieferung und Montage
* mit Details und Bildern / Auf dieser Seite finden Sie unsere aktuellen Projekte. Um mehr zu erfahren klicken Sie auf die Projekte einzeln. Ist Ihre Stadt schon dabei?





