Düsseldorf Iconic White Silestone Arbeitsplatten
Aufmaß, Lieferung und Montage : Düsseldorf
* Silestone Arbeitsplatten
Aufmaß, Lieferung und Montage - Düsseldorf Iconic White Silestone Arbeitsplatten
Iconic White
Die moderne Küche im 2. Obergeschoss einer Wohnung in Düsseldorf zeichnet sich durch ein minimalistisches Design und eine durchdachte Anordnung aus. Ein besonderes Highlight ist der angrenzende Balkon, der für viel Licht und eine offene Atmosphäre sorgt.
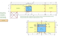
Die über vier Meter lange Küchenzeile erstreckt sich entlang der Wand und ist in weißem, grifflosen Design gehalten, wodurch sie eine besonders elegante und zeitlose Optik erhält. Diese verfügt über zwei Arbeitsplatten aus Silestone Iconic White, 1,2 cm stark, poliert, mit gefasten Kanten. Die größere Arbeitsplatte misst 312,40 x 64,20 cm und enthält eine Unterbauspüle sowie eine Bohrung für die Armatur, während die zweite 101,10 x 65,10 cm groß ist.
Die Kücheninsel, die sich an der Wand gegenüber der Balkontür anlehnt, bildet das Zentrum des Raumes. Die dazugehörige Arbeitsplatte misst 244,30 x 97,70 cm und verfügt über zwei flächenbündige Ausschnitte – einen für das Cerankochfeld und einen für den versenkbaren Dunstabzug.
Das Zusammenspiel aus grifflosen Fronten, hochwertigen Materialien und einer offenen Gestaltung mit Balkonanschluss macht diese Küche zu einem modernen und funktionalen Lebensraum.
Lieferung: Silestone Arbeitsplatten Iconic White
Lieferort: Düsseldorf in Nordrhein-Westfalen
Galerie - Düsseldorf Iconic White Silestone Arbeitsplatten
| Aktuelle - Andere Länder |
|---|
| Österreich |
| Schweiz |
| Skandinavien |
| Andere Länder |
Aufmaß, Lieferung und Montage
* mit Details und Bildern / Auf dieser Seite finden Sie unsere aktuellen Projekte. Um mehr zu erfahren klicken Sie auf die Projekte einzeln. Ist Ihre Stadt schon dabei?


