Dortmund Nero Assoluto Zimbabwe Granit Arbeitsplatten und Wischleisten
Aufmaß, Lieferung und Montage : Dortmund
* Granit Arbeitsplatten und Wischleisten
Aufmaß, Lieferung und Montage - Dortmund Nero Assoluto Zimbabwe Granit Arbeitsplatten und Wischleisten
Nero Assoluto Zimbabwe
Schwarz und Weiß im Mix mit Edelstahl. Diese Küche in Dortmund lebt vom starken Kontrast. Hier dürfen die Kochzutaten und Speisen der Farbklecks sein. Starke Kontraste dürfen sowohl in Farbe, Form, Material als auch Muster zusammen wirken. Diese Küchenfronten in Weiß wirken leicht und modern. Die schwarzen Arbeitsplatten aus dem Granit Nero Assoluto Zimbabwe runden den Look perfekt ab.
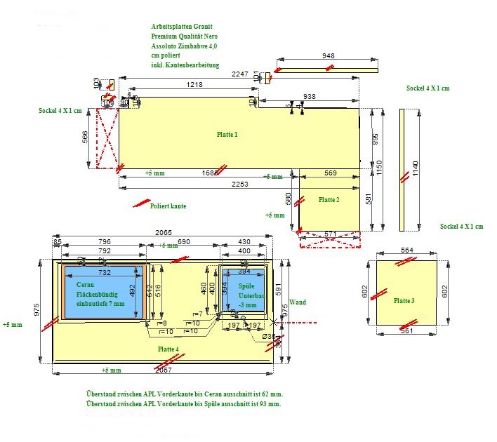
Die 4,0 cm starken Arbeitspatten haben polierte Oberflächen und Kanten. Die erste Arbeitsplatte hat die Maße 225,30 x 66,90 cm und eine Ausklinkung für die Fensternische. Die zweite Platte wurde daneben montiert und hat die Maße 58,10 x 57,10 cm.
Die dritte mit den Maßen 60,20 x 56,40 cm wurde über dem Backofen montiert. Und die letzte Granitplatte wurde auf der Kücheninsel montiert. Diese hat die Maße 206,70 x 97,50 cm. Für das Ceranfeld wurde ein flächenbündiger Ausschnitt eingearbeitet und für das Spülbecken ein Unterbauausschnitt, darüber eine Armaturbohrung.
Aus dem selben Granit wurden 2,39 Lfm bzw. sechs Wischleisten in 4,0 x 1,0 cm mit poliert Oberflächen gefertigt und an die Wand befestigt.
Lieferung: Granit Arbeitsplatten und Wischleisten Nero Assoluto Zimbabwe
Lieferort: Dortmund in Nordrhein-Westfalen
Galerie - Dortmund Nero Assoluto Zimbabwe Granit Arbeitsplatten und Wischleisten
| Aktuelle - Andere Länder |
|---|
| Österreich |
| Schweiz |
| Skandinavien |
| Andere Länder |
Aufmaß, Lieferung und Montage
* mit Details und Bildern / Auf dieser Seite finden Sie unsere aktuellen Projekte. Um mehr zu erfahren klicken Sie auf die Projekte einzeln. Ist Ihre Stadt schon dabei?









